
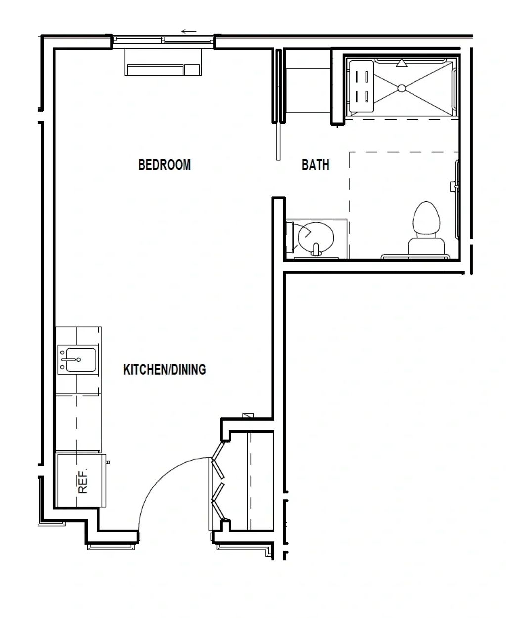
Studio Apartment Unit A
302 SQ FT/ Studio
Welcome to our senior-friendly studio apartment! This cozy and thoughtfully designed living space is specifically tailored to be compact in size, yet still provide all the comforts of home.
The open floor plan maximizes space and allows for easy navigation.
Just off from the kitchen, in this studio style apartment, is the bedroom with beautiful views to the

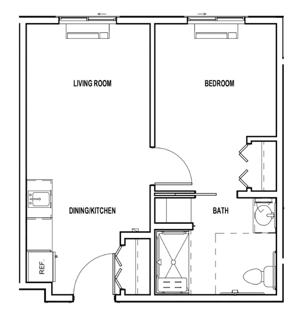
One Bedroom Apartment Unit B
452 SQ FT/ 1 Bedroom
Enjoy lovely views from this one-bedroom apartment. Unit B offers a cozy and functional living space, perfect for individuals or couples.
As you step inside, you'll be greeted by a well designed floor plan that seamlessly combines the dining and living areas and offers a separate area for the bedroom and bath.

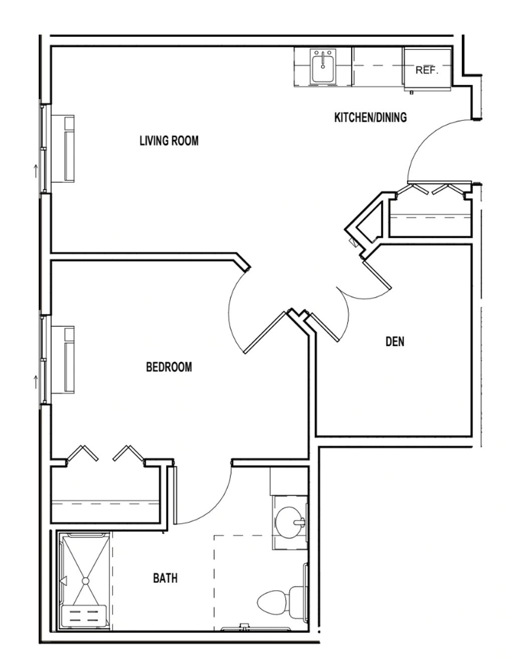
One Bedroom + Den Apartment Unit C
649 SQ FT/ 1 Bedroom w/ Den
Need a little more space? This one bedroom + den unit is sure to please those who need the an extra room for hobbies, projects or special guests. And it still offers a spacious floor plan with separate bedroom with en suite bath.